Utilizamos cookies propias y de terceros para obtener datos estadísticos de la navegación de nuestros usuarios y mejorar nuestros servicios. Si acepta o continúa navegando, consideramos que acepta su uso. OK | Más información
Promoción inmobiliaria Compra Alquila Vende con nosotros Grupo San Pablo Equipos Patrocinados

VILLALONQUÉJAR

Alquiler 14.000€
Ref. #6650 2200m2 0 3

Excelente oportunidad de inversión en la mejor zona del Polígono Industrial de Villalonquéjar.
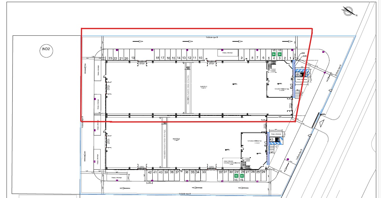
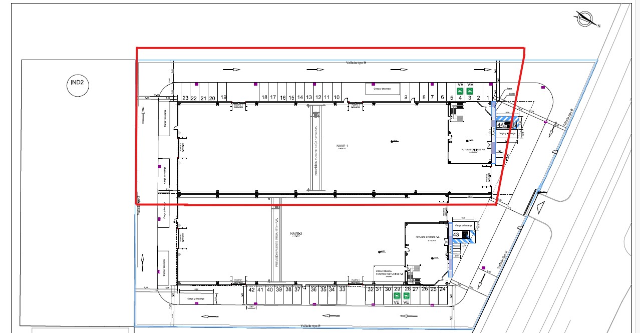
IMPORTANTE: la imagen que aparece del nave es una construida ya, la que se ALQUILA es la de al lado que aún está sin construir. También con posibilidad de venta
Ubicada junto a la Estación de Servicio CEPSA y a solo dos minutos del Restaurante-Hostal La Galería, esta nave industrial ofrece una ubicación estratégica, de gran tránsito y máxima visibilidad.

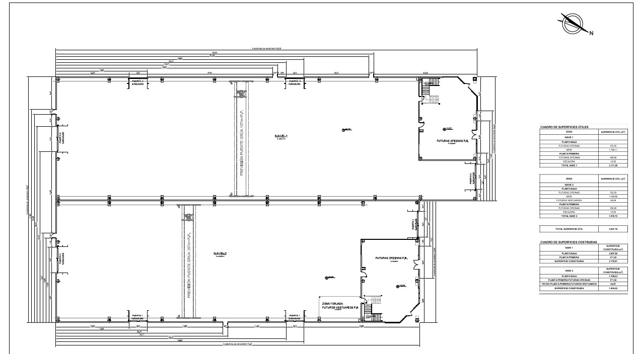
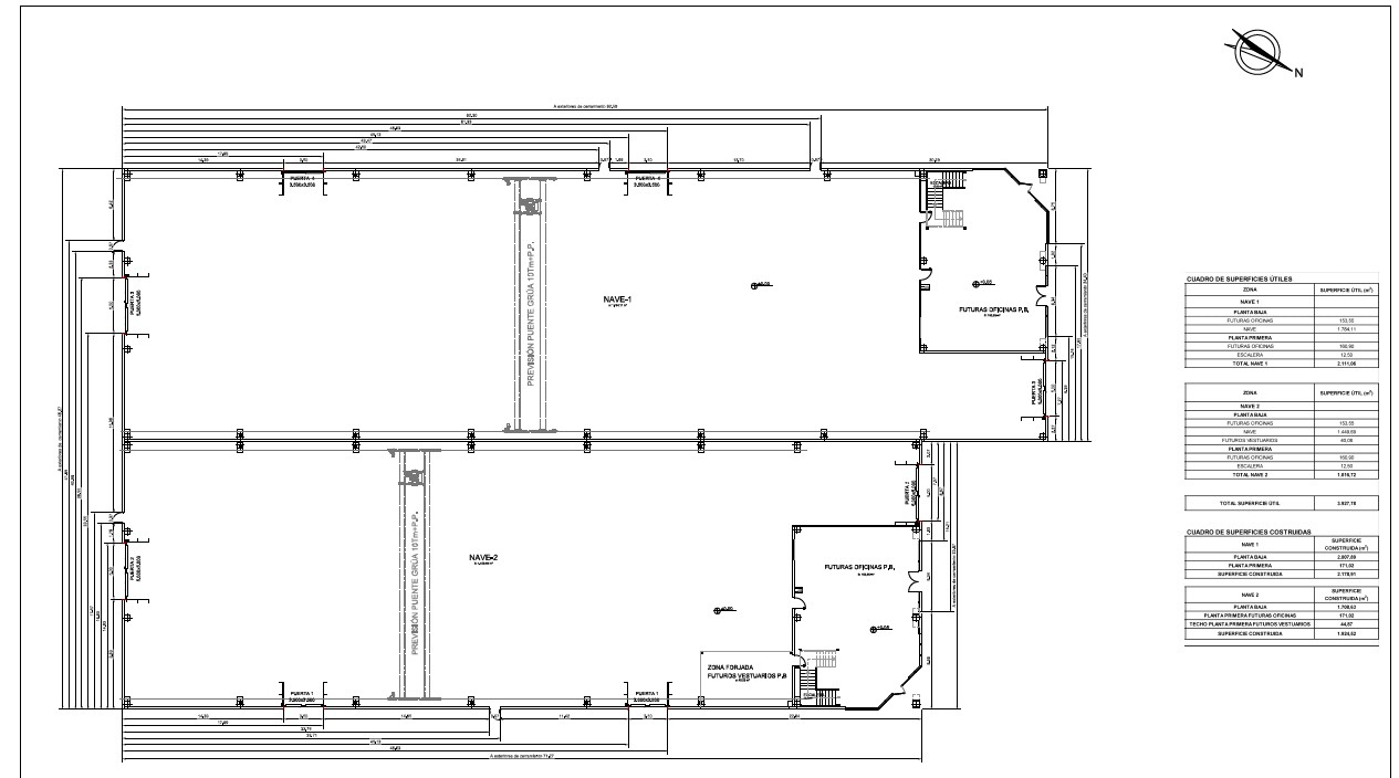
Características principales

Parcela: 4.031 m²

Nave industrial: 2.007 m² en planta baja

Oficinas: 172 m² en planta alta

Distribución funcional: amplias zonas de trabajo, varios baños, vestuarios y espacios adaptables.

Posibilidad de instalar puente grúa, ideal para actividades industriales o logísticas.

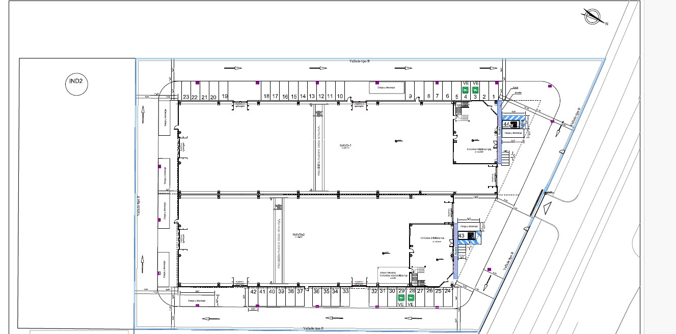
Aparcamiento privado con capacidad para 23 vehículos, incluyendo 2 plazas con punto de carga eléctrica y 1 plaza adaptada para personas con movilidad reducida.

Opciones de compra o alquiler

Venta: Precio indicado correspondiente a la nave completamente construida sobre la parcela.

Parcela disponible por separado: consultar precio.

Posibilidad de alquiler: se valorará según interés.

Una oportunidad única

Combine una localización privilegiada con unas instalaciones modernas, eficientes y versátiles, perfectas para empresas que buscan visibilidad, accesibilidad y proyección de futuro en el principal polígono industrial de Burgos.

Burgos > Oeste > Villalonquéjar-Yagüe

EXTRA

Garaje Ascensor Trastero
Estado de la calificación energética: No indicado
Compartir en Facebook
Compartir en Twitter
Compartir en Linkedin
Compartir en Whatsapp

OFICINA CENTRAL

Av. La Paz, 7 Bajo

Burgos

947217116

inmosanpablo@inmosanpablo.es

OFICINA GAMONAL

C/ Alejandro Yagüe 12- Plaza Roma 12

Burgos

947481936

inmosanpablo@inmosanpablo.es

OFICINA SAN PABLO

C/ San Pablo, 21 Bajo

Burgos

947203730

inmosanpablo@inmosanpablo.es

© 2026 Todos los derechos rervados | Aviso legal | Política de Cookies | Política de Privacidad | Panel Cookies