Utilizamos cookies propias y de terceros para obtener datos estadísticos de la navegación de nuestros usuarios y mejorar nuestros servicios. Si acepta o continúa navegando, consideramos que acepta su uso. OK | Más información
Promoción inmobiliaria Compra Alquila Vende con nosotros Grupo San Pablo Equipos Patrocinados

ESTRENAR OBRA NUEVA

Venta 370.000€
Ref. #6807 180m2 3 3

PRODUCTO EXCLUSIVO Y A ESTRENAR CON SAN PABLO INMOBILIARIA
CALIFICACIÓN ENERGÉTICA TIPO "A" LE MEJOR
Casa totalmente construida nueva con las mejores calidades de aislamiento, revestimientos y acabados del mercado. Realizada a capricho y con una multitud de posibilidades de adaptación y distribución según las necesidades.
A tan solo 13 minutos de Burgos
Fachada en sillería perfectamente tallada y trabajada.
Doble aislamiento térmico y acústico en toda la vivienda incluyendo la zona de garaje
Ventanas de PVC triple cristal, acristalamiento aislados 4+12+6 acústico y solar
Carpintería de madera PVC
Suelo radiante calefactado de gas natural y persianas eléctricas en toda la vivienda
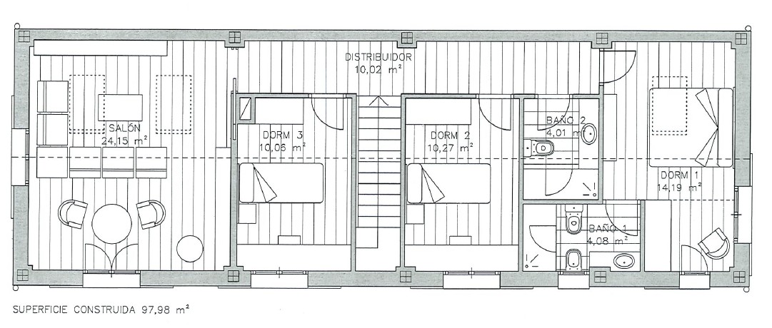
Dos plantas con diferentes posibilidades
PLANTA BAJA ESTADO ACTUAL:
Hall con cocina amueblada a estrenar y salón abierto en un espacio lleno de luz y bonitas vistas junto a la iglesia y el parque. Baño completo de PORCELANOSA, cuarto trastero y garaje cerrado automatizado con suelo gres porcelánico rectificado espesorado para grandes cargas.
PLANTA PRIMERA:
Zona abierta para 3 dormitorios y salón; actualmente con un baño completo con baño en suite más otro baño de cortesía todos de PORCELANOSA.
Aislamiento cubiertas XPS Expandido de 10cm
Suelos en pavimento laminado para tránsito intenso a la abrasión y gres porcelánico en zonas húmedas y de entrada con aislamiento.
Un construcción única
CONSULTA CON SAN PABLO INMOBILIARIA

Vivar Del Cid > PUEBLOS NORTE >

EXTRA

Garaje Ascensor Trastero
Estado de la calificación energética: Tramitado Calificación energética: B
Compartir en Facebook
Compartir en Twitter
Compartir en Linkedin
Compartir en Whatsapp

OFICINA CENTRAL

Av. La Paz, 7 Bajo

Burgos

947217116

inmosanpablo@inmosanpablo.es

OFICINA GAMONAL

C/ Alejandro Yagüe 12- Plaza Roma 12

Burgos

947481936

inmosanpablo@inmosanpablo.es

OFICINA SAN PABLO

C/ San Pablo, 21 Bajo

Burgos

947203730

inmosanpablo@inmosanpablo.es

© 2026 Todos los derechos rervados | Aviso legal | Política de Cookies | Política de Privacidad | Panel Cookies